J&A杰恩创意设计新近完成的绿城·济南中心样板房设计,汲取了中国元素融合现代的表现手法,塑造了一个宜古宜今、亦中亦西的办公空间。
A户型
A户型办公样板间位于绿城·济南中心21层,设计师将之打造成了一个针对外贸型企业的,融合未来感、科技感的新型办公空间。硬装的部分体现泉城济南对于水文化的尊重和青睐,造型运用了大量流线型的线条,圆形的大堂,以及流线的空间分隔。结合了硬装的设计,软装配饰的风格也同样是选用一些流线感的现代造型家具,通过一些几何结构和液体流动性线条打造一个抽象且动态的空间。

开放办公室国内业务部

颜色上沿用了硬装的颜色基调,采用灰白色系为主色调辅助以灰蓝色的多色搭衬,让整体色调更富有层次感。配饰选用灰白色系的饰品,设计灵感取自莫兰迪的绘画,以单纯、简洁的方式营造最和谐的气氛,其中搭配一些不锈钢材质的几何感摆件,赋予空间新的时代特征。休闲的气氛和多元的配饰显示了设计师的小心思,点缀了原本严肃的工作环境,让氛围也活跃起来了。
设计充分考虑了外贸型高科技企业员工在办公室高度交流性的特点,灵活开放的空间满足各种功能需求,促进了公司内部的沟通融合也同时增强了员工的凝聚力和归属感,充分彰显了当代高科技企业的创意,探索了新型外贸企业面向未来发展的空间创意模式。

总经理室洽谈区

总经理室沙发
B户型
样板间B户型则主要针对追求卓越的金融类企业。前厅及多功能区的设计,集接待、会议与酒会于一体,是可容纳20人的多用途空间。整个空间以大地色做基调,加之具有山石肌理的铜门和屏风,体现山了的沉稳与平和,并给人以信赖感,同时辅助以蓝、橘为点缀的色彩配搭,华贵之中有让空间多了灵动变化。绒布、璀璨水晶、奢华香槟金不锈钢、古朴陶瓷及凝栀琉璃的融合,分别从视觉和触感上给客户提供尊贵的高品质享受。

高级接待区 从书画区看向洽谈区

高级接待区 洽谈区

高级接待区 书画区 书桌上摆件

高级接待区外走道
济南特色的水感被运用在地面的部分,总经理办公室、高级接待区、多功能室等多个空间中都使用了能够体现水流,水纹以及波光的地毯和大理石,轻巧地营造了置身山水之间的体验感。家具主要选用来自意大利的Fendi Casa和Vittoriafrigerio的家具品牌,两者奢华、内敛的风格气质与追求卓越、品味上层的项目定位完美结合,而结合石狮、铜马、盆栽、青花等等这些中国风的细节小品,也让空间有了别致的古韵。

多功能室 会议区

前厅 接待区

总经理室 洽谈区茶几上果盘

总经理休息室 壁柜
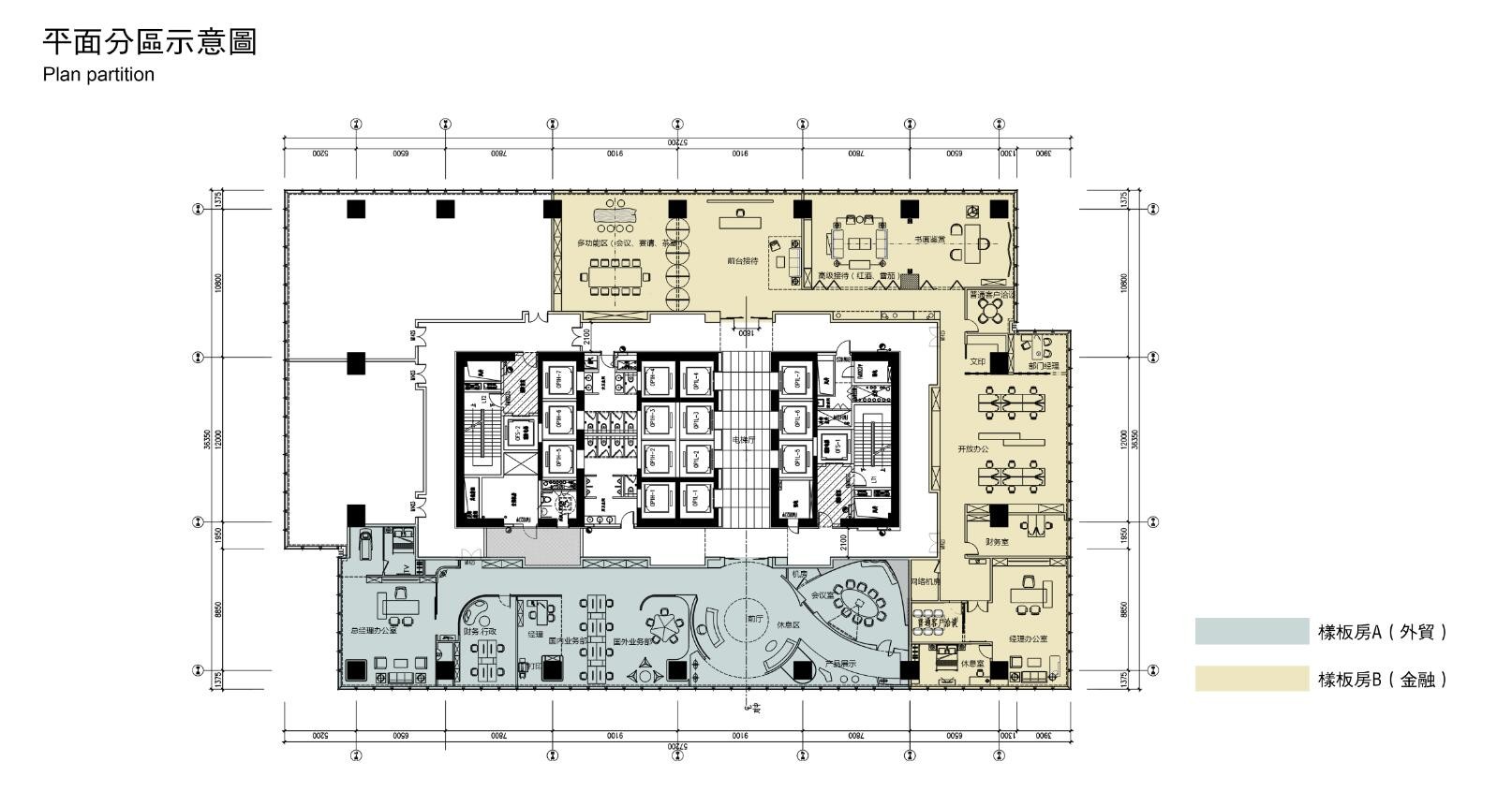
设计图
济南中心样板间项目的金融区设计沉稳、庄重又不失内敛,其中多功能区和高级接待室接待贵宾及举办宴会效果非常不错,外贸区线条简洁干练,色彩运用的恰到好处,太空舱般的前厅和会议室令人耳目一新

9月美国室内设计中文网对J&A的新作绿城·济南中心进行了采访报道。
详情点击:融•合——绿城·济南中心